Italiano
2 Camere 3 Bagni 1 Box/Posti auto 169 m2
Caratteristiche principali
Codice
V000981_C_
Prezzo
420.000 EUR
Spese condominiali
1.920 EUR
Classe
C (106,78)
Locali
5
Altre caratteristiche e accessori
Stato Immobile
Ottimo
Grado
Signorile
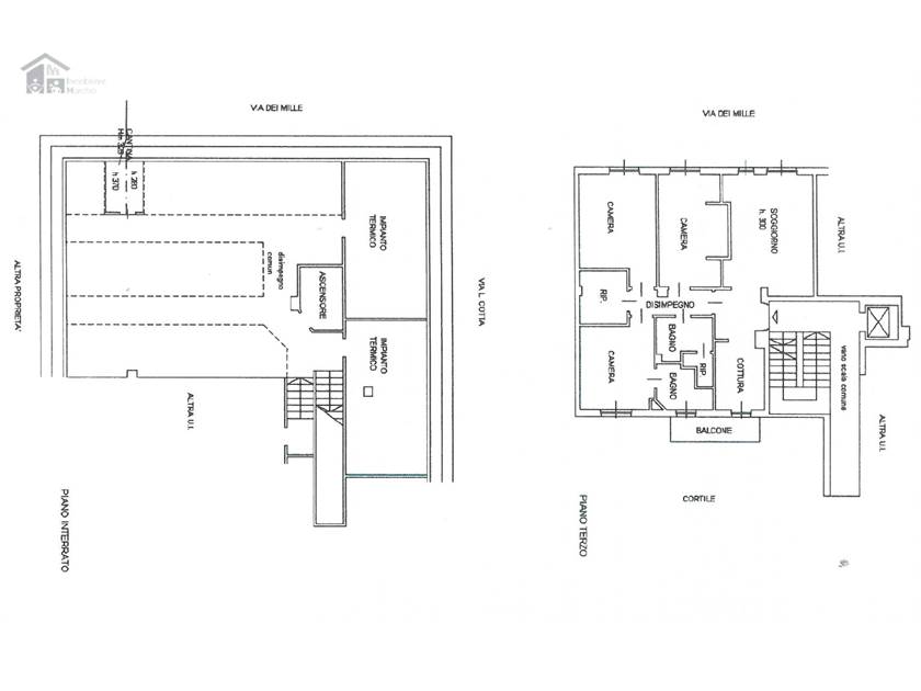
Piano
Terzo
Riscaldamento
Autonomo
Tipo Riscaldam.
Caldaia
Tipo Impianto
Radiatori
Fonte Energetica
Gas
Raffrescamento
Split
Infissi
PVC Doppio Vetro
Serramenti
Ottimo
Pavim. Giorno
Parquet
Pavim. Notte
Parquet
Pavim. Cucina
Resina
Pavim. Bagno
Ceramica
Accessori
Aria Condizionata, Doppi Vetri, Lavanderia, Porta Blindata, Ripostiglio
Ideale per chi cerca un immobile moderno, per chi cerca una casa in centro, per chi ha necessità di abitare vicino alla stazione perché lavora a Milano o a Torino, per chi vuole un bel palazzo, per chi ama le piccole palazzine per chi ama il centro ma vorrebbe uno stabile silenzioso.

Questo appartamento con vista cupola di Novara si trova in una palazzina che sorge all'interno di uno stabile, per tanto non esposta a rumori e a traffico.
L'appartamento si sviluppa essenzialmente su due piani, (terzo e secondo piano) oltre al piano sottotetto.

La palazzina e composta da solo 2 abitazioni e da un ufficio ed è dotata di ascensore.

Descrizione e suddivisione spazi interni: 3 piano, ingresso living soggiorno con ampia cucina a vista, bagno con zona lavanderia, terrazzo, scala interna, al 2° piano troviamo due ampie camere da letto una delle quali con bagno interno e cabina armadi, l'altra anch'essa con bagno interno, 2 balconcini e un ripostiglio. Infine al 4° piano si trova il sottotetto con un bel terrazzo, entrambi i terrazzi godono della vista Cupola.
Completa la proprietà un autorimessa al piano interrato.

COD. riferimento annuncio: V000981

Per fissare un appuntamento puoi inviare una mail o contattarci ai numeri:
0321 331462 – 380 4712226

Devi vendere casa?
Richiedi una valutazione professionale inviando un messaggio WhatsApp al 334 6706732
Corso della Vittoria 7, Novara (NO)
Cookie preference