Italiano
1 Camere 1 Bagni 2 Box/Posti auto 50 m2
Caratteristiche principali
Codice
V001118
Prezzo
110.000 EUR
Classe
G (374,7)
Locali
2
Mq Box
41
Altre caratteristiche e accessori
Stato Immobile
Abitabile
Panorama
Vista Monti
Piano
Secondo
Lati Liberi
2
Giardino
Cortile
A Scopello in Valsesia a pochi minuti dal comprensorio sciistico dell'alpe Mera . A soli 50 mt . dall'accesso al percorso naturale che costeggia le limpide acque del fiume Sesia da cui prende il nome l'intera vallata .
Vogliamo farvi scoprire un angolo di tranquillità immerso nella natura .
Tra eventi culturali e tradizioni culinarie dove i prodotti autoctoni riportano gusti sapori e sensazioni all'arte e all'artigianato delle montagne che sovrastano il comune .
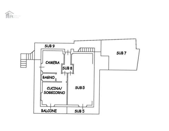
Vogliamo consigliare questo splendido bi locale di circa 50 mq. ristrutturato nel tempo e posto al piano secondo .
Composto da ingresso , camera matrimoniale , bagno , cucina e soggiorno in unica soluzione , balcone su 2 lati .
Il riscaldamento è di tipo autonomo .
Di pertinenza sono anche quota di scala comune corridoio aperto e parcheggio .
Annessa ampia autorimessa doppia al piano strada.

www.immobiliaremarchio.it
cod. riferimento annuncio: V001118

📞 Per fissare un appuntamento puoi inviare una mail o contattarci ai numeri:
0321 331462 – 380 4712226

🏠 Devi vendere casa?
Richiedi una valutazione professionale inviando un messaggio WhatsApp al 334 6706732
Cookie preference